2-marfa-1.jpg
1-marfa-4.jpg
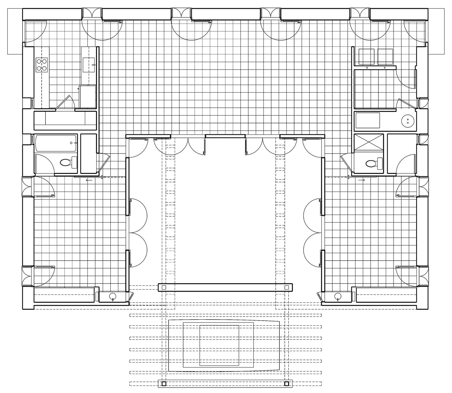
6-Marfa-Floor Plan.jpg
prev / next